외식업 | 양식
보증금 : 5,000만원 / 월세 : 230만원
무권리금
경기 용인시 기흥구 공세동 734-4
1
0
금액정보
월 매출
월 수익
매도자 정보 (개인매물)
이름 이주상
번호 비공개
매물정보
2023-10-23 등록
상호명
주소
경기 용인시 기흥구 공세동 734-4
층수
지상 3 / 3층
평수
실면적 201.65㎡ 61평
주차
주차가능
댓글
* 연락처는 비밀 댓글로 주고 받으세요 (전체 공개시 사기, 스팸 연락 주의)
금액정보
권리금
무권리금
보증금
5,000만원
월세
230만원
관리비
35만원
권리금 산정에 대한 설명
권리금 제안하기
* 이 매물에 관심이 있다면 권리금을 제안해보세요!
제안금액
만원
제안사유
평균 매출정보
허위 매출정보 기재로 매수자들의 시간낭비 상황 발생시,
'해당매물 비공개 + 해당 계정 영구정지' 처리됩니다.
매물상단의 버튼을 클릭하여 관련 내용을 구체적으로 입력해 주세요.
원아웃 제도란
허위 기재 시 원아웃 제도로 영구 정지 당할 수 있습니다.
월 매출
재료비
0%
인건비
0%
혼자운영
0명
가족/동업자
0명
정직원
0명
파트타임
0명
월 수익
+????만원 ???%
순이익에 대한 추가정보
용인 코스트코 공세점 정문 앞 상가로 세입자가 애견동반 카페 브런치 카페 운영 중 폐업하여 현재 공실입니다.
매출정보 질문하기
실제 매출 / 매입 현황

부가가치세 과세표준증명, 여신금융협회 카드 매출, 배달앱 3사에서 연동된 자료를 확인해보세요!

매물 설명
개인 직거래 매물이 아닌, 중개업자 분들의 매물도 원아웃 제도로 처리됩니다.
안녕하세요.  

기존 세입자분이 애견동반 브런치 카페로 (오토) 운영하시던 공간인데  

3년간 전담하시던 매니저분께 개인 사정이 생기면서 세입자분이 사업을 정리하셨고요.  

규모가 있다보니 다양한 업종을 대상으로 세입자분을 구하고자 공실처리 후 이곳에 등록하게 되었습니다.   

  

이 글을 쓰는 제가 건물주고요.    

용인 코스트코 공세점 정문에 맞붙어 있는 상가(코스코프라자)로  

1~2층 모두 식당과 분식, 커피점문점 등 요식업으로 구성되어 있습니다.   

  

주변에 대기업 연구소와 관련 기업체들이 입주해있고 성원상떼레이크뷰와  

대주피오레 아파트가 모두 대형 평수라 기본만 하셔도 평일 점심 장사는 꽤 차는 지역입니다.   

  

탑층인 3층 전체 독채이고 **실내 전체 실면적 61.86평**  

화장실과 엘레베이터, 테라스로 나가는 **전실공간 제외시 전용 53평** 나옵니다.  

또한 실내와 맞붙는 거의 동일한 사이즤의 **테라스만 약 50평 별도로 독점 사용**가능합니다.  

(주변 회사들이 다 대기업이라 프랜차이즈 요식업체나 브런치나 와인을 곁들이는 숙성육 점문점,  

테라스를 활용해 대형 카페 등 만들어보심 좋을 듯 합니다.)  

  

보증금 5천 / 월세 230만원 생각하고 있습니다.  

(3층 동일면적 바로 옆 공세프라자가 월 360만원 받고 있습니다. )   

  

이쁘게 꾸미셔서 오랜동안 잘 운영 하실 사장님 찾고 있습니다.   

임대 외에 매매도 생각 있으신 분은 댓글 주십시오.  





사진의 콩깍지 간판 위 쪽 3층이며 하늘 보이는 곳은 테라스 공간입니다.   





사진의 3층 전체입니다.  





코스트코와 맞닿아 있고 오가며 잘 보이는 곳입니다.   





전실 넓직하고 화장실 단독사용이라 쾌적하고 깔끔합니다. 크기도 무난하고요.





아래 보이는 밝은 쪽이 테라스 나가는 방향으로 건물 실내사이즈만한 테라스가 반듯하게 있습니다.

테라스 적극 활용하실꺼면 창을 키우셔서 슬라이딩 도어 하셔도 될 듯하지요.^^   





남쪽과 동쪽이 창이라 개방감도 좋고 겨울에도 창 닫아놓으면 낮엔 춥지않고 따뜻합니다.





테라스는 현재 사진 보단 좀 지저분합니다. 감안하세요.T.T  





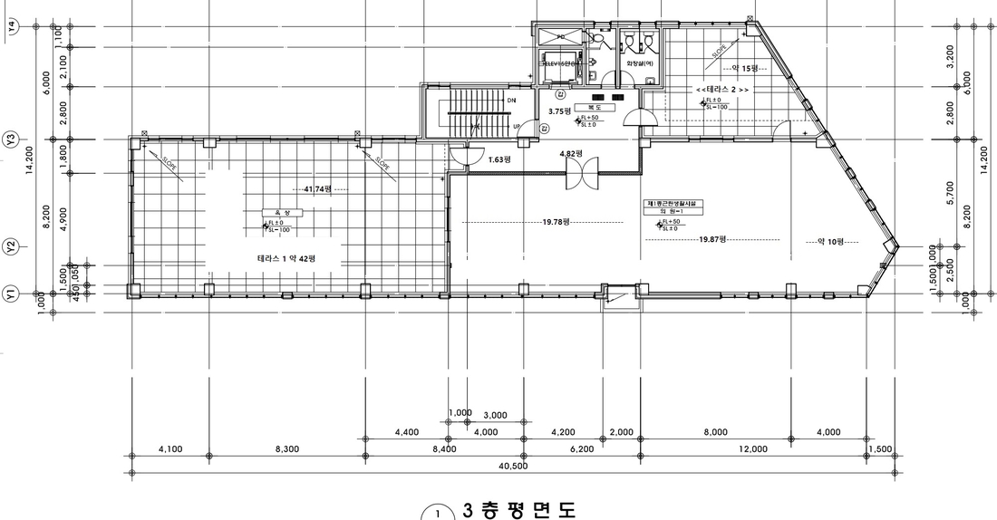
자세한 면적은 도면 첨부했으니 참고가 되시기 바랍니다.  

(현재 도면에 있는 테라스 1 약 42평  / 테라스 2 15평이며 / 전실 제외 실내 전용공간은 53평입니다. )  











 
위치정보
건축물 정보
건축물정보 보기
건물명
코스코프라자
대지면적
735㎡
건축면적
418㎡
연면적
988㎡
사용검사일
2015-03-30
사용승인일
2015-04-18
준공인가일
2015-09-11
용적률산정면적
988.47㎡
기타용도
제1종,제2종근린생활시설
주구조
철근콘크리트구조
높이
17.2m
지역 내 '좋아요 / 조회수' 추천 매물
꾸브라꼬숯불두마리치킨 리뷰 등록 물류시스템 좋아요,본사 소통도 아주 잘됩니다. 운영만 잘하신다면 큰문제없습니다. 광고마케팅 아쉬워요, 광고에 마케팅비용을 많이 못해서 아쉬워요. 그 외에는 없습니다.
피자파는집 리뷰 등록 지점 특별히 티치 하는건 없음. 일부 사입해서 사용해도 됨. 근무는 편하게 할수 있음 지사장, 본사 등 피드백 부족하며 신메뉴 개발시 지점 의견은 물어보지 않음. 터치가 없는건 좋은데 좀.. 으쌰으쌰 좀 했으면..
HOTEL-LAUNDRY 호텔런드리 리뷰 등록 본사에서 고객응대를 해주고, 카톡으로 필요물품 발주넣는 시스템 등이 편리함. 작은 기업이다 보니 점주 요청에 대한 응대가 느리고, 보장된 매출액이 안나와도 마땅한 대책이 없음
명품국밥 리뷰 등록 손수 수작업 당일 고기 당일육수 국밥집들과다른 국밥국물맛 이게 호불호가 거의없는맛 힘들어요...손수작업이많다보니 힘들어요 모든게수작업
사위식당 리뷰 등록 프렙만 잘해놓으면 많은 손님이 몰려도 큰 문제없이 운영가능. 덮밥류 조리가 있지만 주방난이도는 높지않은 편 프렙만 잘해놓으면 많은 손님이 몰려도 큰 문제없이 운영가능. 덮밥류 조리가 있지만 주방난이도는 높지않은 편 아직도 메인음식을 모르는 사람들이 많음. 맛의 호불호는 없으나 조금 더 대중화가 된다면 좋지않을까 함
요거트월드 리뷰 등록 유행에 맞는 신메뉴가 지속적으로 출시 되어서 좋은것같아요!!!!!!! 매장 담당자와의 소통이 답답한편이고 매장관리를 잘안해주는것같아요
노군꼬치 리뷰 등록 본사에서 점주들 신경 잘 써주고 인테리어가 예뻐서 손님들 유입이있고 메뉴가 전체적으로 하기쉽고 맛있습니다 아지까진 매장이 많은편이 아니여서 물류 품절이 간혹있고 신메뉴 개발이 더딘편입니다
낙원갈비집 리뷰 등록 고기를 시키면 샤브샤브가 무제한이라는 점이 타 고깃집 대비 경쟁력이 좋습니다. 본사관리 미흡하지만 재료매입에대한 강제가 없어 좋기도 합니다. 같은 품질의 재료비를 낮출수 있습니다
무공돈까스 리뷰 등록 맛이랑 가성비가 좋아요. 난이도가 높지 않아서 하기 편해요. 셀프시스템이라 좋아요 신메뉴 개발이 아쉬워요. 대중적인 메뉴로 더 추기해주었으면 좋겠어요
커피스토어 리뷰 등록 음료위주로 판매하는곳은 매출이 한계가있다고 생각합니다. 커피스토어는 와플과 다른디저트가있어서 매출상승에 큰역활을해요. 커피스토어가 다른 프차에 비해 많이 알려지지않았어요.본사에서 좀더 홍보를 잘해서 많이알려졋음 좋겟습니다
꾸브라꼬숯불두마리치킨 리뷰 등록 물류시스템 좋아요,본사 소통도 아주 잘됩니다. 운영만 잘하신다면 큰문제없습니다. 광고마케팅 아쉬워요, 광고에 마케팅비용을 많이 못해서 아쉬워요. 그 외에는 없습니다.
피자파는집 리뷰 등록 지점 특별히 티치 하는건 없음. 일부 사입해서 사용해도 됨. 근무는 편하게 할수 있음 지사장, 본사 등 피드백 부족하며 신메뉴 개발시 지점 의견은 물어보지 않음. 터치가 없는건 좋은데 좀.. 으쌰으쌰 좀 했으면..
HOTEL-LAUNDRY 호텔런드리 리뷰 등록 본사에서 고객응대를 해주고, 카톡으로 필요물품 발주넣는 시스템 등이 편리함. 작은 기업이다 보니 점주 요청에 대한 응대가 느리고, 보장된 매출액이 안나와도 마땅한 대책이 없음
명품국밥 리뷰 등록 손수 수작업 당일 고기 당일육수 국밥집들과다른 국밥국물맛 이게 호불호가 거의없는맛 힘들어요...손수작업이많다보니 힘들어요 모든게수작업
사위식당 리뷰 등록 프렙만 잘해놓으면 많은 손님이 몰려도 큰 문제없이 운영가능. 덮밥류 조리가 있지만 주방난이도는 높지않은 편 프렙만 잘해놓으면 많은 손님이 몰려도 큰 문제없이 운영가능. 덮밥류 조리가 있지만 주방난이도는 높지않은 편 아직도 메인음식을 모르는 사람들이 많음. 맛의 호불호는 없으나 조금 더 대중화가 된다면 좋지않을까 함
요거트월드 리뷰 등록 유행에 맞는 신메뉴가 지속적으로 출시 되어서 좋은것같아요!!!!!!! 매장 담당자와의 소통이 답답한편이고 매장관리를 잘안해주는것같아요
노군꼬치 리뷰 등록 본사에서 점주들 신경 잘 써주고 인테리어가 예뻐서 손님들 유입이있고 메뉴가 전체적으로 하기쉽고 맛있습니다 아지까진 매장이 많은편이 아니여서 물류 품절이 간혹있고 신메뉴 개발이 더딘편입니다
낙원갈비집 리뷰 등록 고기를 시키면 샤브샤브가 무제한이라는 점이 타 고깃집 대비 경쟁력이 좋습니다. 본사관리 미흡하지만 재료매입에대한 강제가 없어 좋기도 합니다. 같은 품질의 재료비를 낮출수 있습니다
무공돈까스 리뷰 등록 맛이랑 가성비가 좋아요. 난이도가 높지 않아서 하기 편해요. 셀프시스템이라 좋아요 신메뉴 개발이 아쉬워요. 대중적인 메뉴로 더 추기해주었으면 좋겠어요
커피스토어 리뷰 등록 음료위주로 판매하는곳은 매출이 한계가있다고 생각합니다. 커피스토어는 와플과 다른디저트가있어서 매출상승에 큰역활을해요. 커피스토어가 다른 프차에 비해 많이 알려지지않았어요.본사에서 좀더 홍보를 잘해서 많이알려졋음 좋겟습니다

매물정보

47524
보증금5,000만원 / 월세230만원
무권리금
경기 용인시 기흥구 공세동 734-4
35만원
실면적 201.65㎡ 61평
지상 3/3
외식업 (양식)
주차가능
무권리

상가 수익률

월매출 0 만원
월지출 0 만원
월수익 0 만원
창업비용 5,000 만원
연수익률 0 %
점포찾기
점포팔기
프랜차이즈
내정보